UDZ-2磁翻板電遠傳液位計

- AK-SX7083流量積算儀
- ◆ 本儀表適合于蒸汽和一般氣體的測量,可用于內部計量和貿易計量。 ◆ 本儀表符合新版流量積算儀檢定規程《JJG1003-2016》 ◆ 本安裝使用手冊是以具備一定的流量計經驗知識為對象編寫的,使

- 數顯壓力表
- AK-SXYLB數字壓力表為全電子結構。前端采用高精度壓阻式壓力傳感器,輸出信號由高精度,低溫漂的放大器放大處理,送入高精度的A/D轉換器,轉換成微處理器可以處理的數字信號,經過運算處理,

- 乙酸乙酯液位計
- 乙酸乙酯液位計是公司引進吸收國外同類產品,并加以提高的產品。系列產品可以做到高密封、防泄漏和在高溫、高壓、高粘度、強腐蝕性條件下可靠地測量液位,全過程測量無盲區

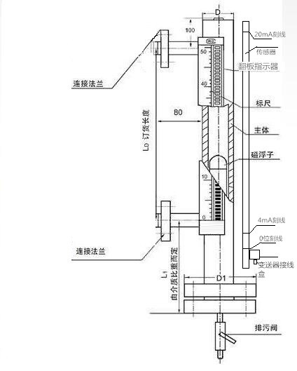
工作原理
UDZ-2型電遠傳磁浮子液位計主要由主體、磁浮子、傳感器、變送器和顯示儀五部分組成。其工作原理是以主體內的磁浮子隨液位的升降而同時吸合傳感器內相應位置上的干簧管,從而使傳感器內的總電阻(或電壓)發生相應的變化,然后通過變送器將電阻 (或電壓)的轉變成4-20mA.DC的標準電流輸出,再由我廠專門配套的數顯液位控制儀,顯示液位和設定上、下限報警,實現液位的位式控制或調節。此外亦可與我廠的光柱數顯儀配套,顯示更為直觀。或者與其它可以接受4-20mA.DC信號輸入的任何顯示儀或調節器相配套,實現對液位的遠距離顯示、位式控制、斷續或連續的PID調節。
產品特點:
適合于壓力容器的液位與界位測量,可集現場指示、遠傳輸出和控制報警于一身。
指示新穎,讀數直觀、醒目,可根據用戶方便改變觀察角度。
測量范圍大,不受儲罐高度限制。
指示機構與被測介質隔離,因而密封好,可靠性高。
耐高溫,可采用不褪色鋁合金翻柱。
結構簡單,安裝方便,維護費低。
遠傳裝置:
輸出信號:4~20mA
負載阻抗:350Ω(24VDC時)
供電電源:18~30VDC(額定24VDC)
環境溫度:-40~80℃
相對濕度:≤90%RH
功 耗:0.5W
安裝
檢查指示器零位片與連接法蘭中心是否成一直線,如有松動,調好后擰緊夾箍螺釘。UDZ-2型磁性電遠傳液位計出廠時經調校合格后用抱箍固定在一起,(移動磁性浮子組件,使顯示器顯示位置應與變送器輸出相對應)。
(用戶也可按需自行調節)
將液位計與容器接口法蘭面間加密封墊將對接螺釘均勻擰緊。用矯正器將翻板指示器內翻板慢慢從下至上,再從上至下翻轉數遍,zui后都翻數成白色的面(不能用磁浮子在翻板指示上翻轉翻板片)。輕輕放入磁浮子,注意箭頭向上(重端向上),切莫放反。裝上密封墊及法蘭蓋,螺釘均勻擰緊。仔細檢查各連接部分,完好無誤,方可投入使用。
相關資訊
聯系奧科
固話:0517-86919886
傳真:0517-86919886
手機:15261725556
地址:江蘇金湖縣工業園區工一路



